/ Unser Angebot für Sie

Unsere Kompetenzen

Projektplanung im Stahl- und Maschinenbau Planung von mechanischen Komponenten Planung von Modulen für Industrieanlagen Planung von Maschinen und Geräten Co-Engineering mit externen Metallbaukonstrukteuren oder Architekten 

Eine Auswahl unserer Arbeiten

Impressionen

weitere Laden

/ Unser Service für Sie

Unsere Dienstleistungen

Allgemeine Konstruktionsarbeiten 
  • Entwicklung von Konzepten
  • Erstellen von Entwürfen
  • Erstellen von 2D- oder 3D-Modellen
  • Erstellen von technischen Zeichnungen für die Produktion
  • Ermitteln von produktionsrelevanten Daten
  • Erstellen der Projektplanung
  • Erstellen von Daten für die Weitergabe an Dritte
  • Erstellen der Arbeitsorganisation
  • Unterstützung der AVOR
  • Qualitätssicherung durch ständiges Nachführen von Zeichnungen mit Indexierung
  • Berechnen von Bauteilen (Statik und Festigkeit)
 
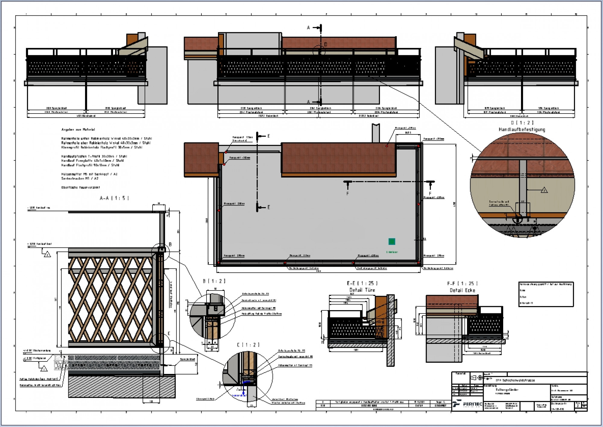
Konstruktionsprojekte Metallbau / Stahlbau / Montage 
  • Erstellen von Zeichnungen anhand von Architektenplänen
  • komplette Massaufnahme auf der Baustelle für die Erstellung von Geländern, Treppen, Balkonen etc.
  • komplette Durchführung von Kundenprojekten in diversen Branchen inklusive Erstellen von Entwürfen und 3D-Modellen für die Realisierung eines Produktes
  • Abklärungen und Machbarkeitsstudien
  • Datenaufbereitung anhand von Kundenzeichnungen für das Erstellen von Angeboten und Richtpreisen
  • Überprüfung der Statik und Festigkeit bei Konstruktionsprojekten
 
Konstruktionsprojekte Mechanik / Anlagebau / Maschinenbau / Montage 
  • Optimieren und Ergänzen von Kundenzeichnungen für eine optimale Produktion der Werkstücke
  • Aufbereiten von Daten für die Weitergabe, wenn Teile nicht im eigenen Betrieb gefertigt werden können
  • Erstellen von 3D-Modellen und Produktionszeichnungen für mechanische Teile
  • Erstellen von 3D-Modellen und Produktionszeichnungen für mechanische Baugruppen
  • Entwerfen von Bauteilen anhand von Kundenskizzen
  • Entwerfen von Hilfsmitteln und Lehren für die Produktion
  • Berechnungen für mechanische Komponenten